Rénovation de la cure de Cotterd-Bellerive-Rural
Transformation et rénovation
Transformation de la cure de Cotterd-Bellerive-Rural en maison d’hôte proposant des retraites et séjours de bien-être grâce à différents types de yoga et de méditations en intérieur comme en extérieur.
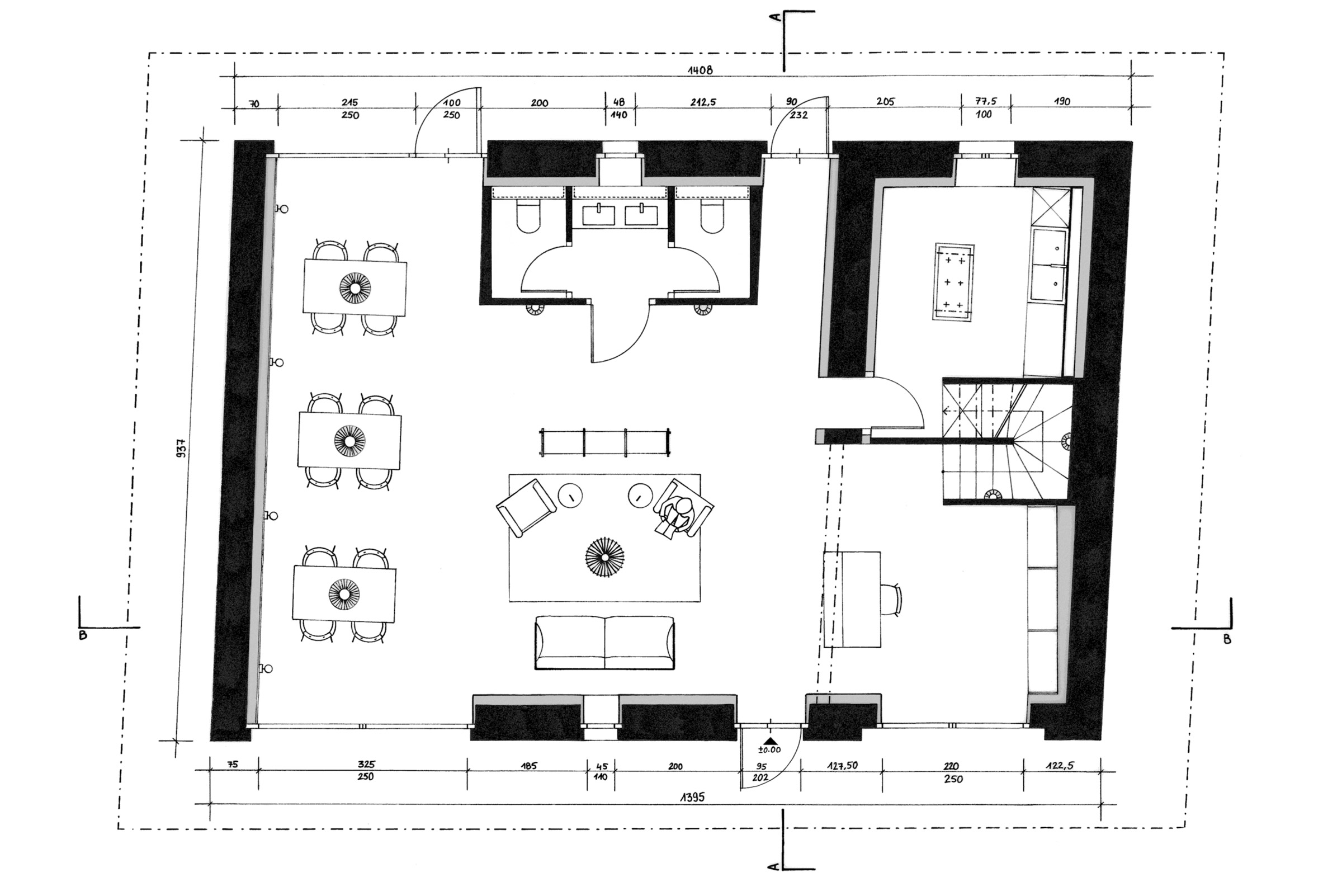
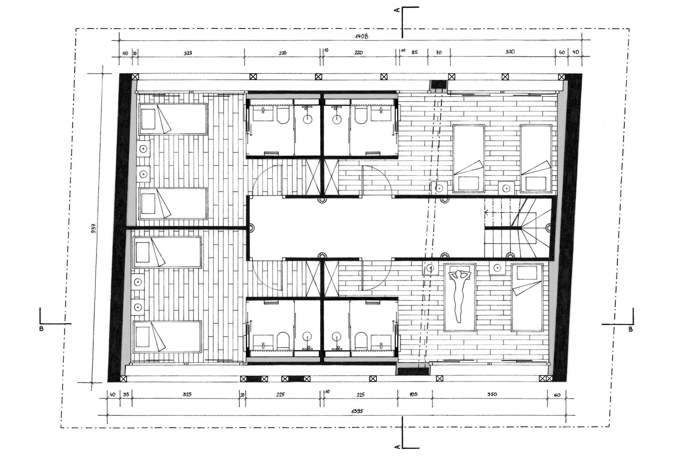
Elle dispose d’une cour, d’un jardin ainsi que d’une terrasse située à l’arrière de la maison. Ses trois étages permettent de séparer les espaces publics des espaces privés. Le rez est composé d’une réception, une cuisine, un salon et une salle de restaurant. À l’étage, on retrouve quatre chambres doubles pouvant accueillir huit clients. Sous les combles, une salle de yoga lumineuse et spacieuse y a été aménagée.
Une atmosphère conviviale, douce et relaxante grâce à des matériaux naturels et durables, des lignes épurées et des coloris neutres.
Cure de Cotterd-Bellerive-Rural Alt. 533 m

















